おかげさまで開設25周年ACMECORE.CO 創業祭

ACMECORE.CO

詳しくはこちら
マイストア マイストア 変更
  • 即日配送
  • 広告
  • 取置可能
  • 店頭受取

HOT ! The Bauhaus バウハウス Bauhaus I バウハウス Print – Blau

※ACMECORE.CO 限定モデル
YouTuberの皆様に商品の使い心地などをご紹介いただいております!
紹介動画はこちら

ネット販売
価格(税込)

8584

  • コメリカード番号登録、コメリカードでお支払いで
    コメリポイント : 2ポイント獲得

コメリポイントについて

購入個数を減らす
購入個数を増やす

お店で受け取る お店で受け取る
(送料無料)

受け取り店舗:

お店を選ぶ

近くの店舗を確認する

納期目安:

13時までに注文→17時までにご用意

17時までに注文→翌朝までにご用意

受け取り方法・送料について

カートに入れる

配送する 配送する

納期目安:

2025.10.06 3:39頃のお届け予定です。

決済方法が、クレジット、代金引換の場合に限ります。その他の決済方法の場合はこちらをご確認ください。

※土・日・祝日の注文の場合や在庫状況によって、商品のお届けにお時間をいただく場合がございます。

即日出荷条件について

受け取り方法・送料について

カートに入れる

欲しいものリストに追加

欲しいものリストに追加されました

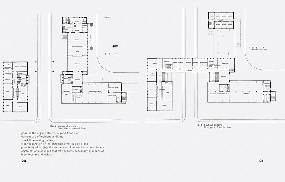
The Bauhaus バウハウス Bauhaus I バウハウス Print – Blauの詳細情報

Bauhaus I バウハウス Print – Blau。Bauhaus I バウハウス Print – Blau。Walter Gropius: Bauhaus Buildings Dessau: Bauhausbücher 12。バウハウスに関する大判書籍、黒と白のシンプルなデザイン。Walter Gropius: Bauhaus Buildings Dessau: Bauhausbücher 12。weimar dessau berlin chicago - タイトル: BAUHAUS- サイズ: 大判- 内容: バウハウスに関する書籍ご覧いただきありがとうございます。趙之謙の書画と北魏の書 図録。
  • Bauhaus I バウハウス Print – Blau
  • Bauhaus I バウハウス Print – Blau
  • Walter Gropius: Bauhaus Buildings Dessau: Bauhausbücher 12
  • Walter Gropius: Bauhaus Buildings Dessau: Bauhausbücher 12

同じカテゴリの 商品を探す

ベストセラーランキングです

このカテゴリをもっと見る

この商品を見た人はこんな商品も見ています

近くの売り場の商品

このカテゴリをもっと見る

カスタマーレビュー

オススメ度  4.2点

現在、2152件のレビューが投稿されています。